unsere produkte

3D modell

Moderne 3D CAD Software gibt uns die Möglichkeit unseren Kunden die beste Planung zu liefern. Durch die Nutzung von Laserscanning-Geräten gelingt uns eine vollständig kollisionfreie Planung.

Das Modell kann unter vielen Dateiformaten exportiert werden !

R&I's

Fließbilder sind im Anlagenbau besonders wichtig. Diese werden bei uns sehr übersichtlich erstellt und immer auf Stand gebracht !

Aufstellungspläne

Wir erstellen genaue Aufstellungspläne. Die Pläne umfassen die Aufstellung von Anlagenteilen wie Pumpen, Behälter, Wärmetauscher und andere Apparate, die Bestandteil des Projektes sind.

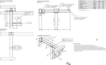
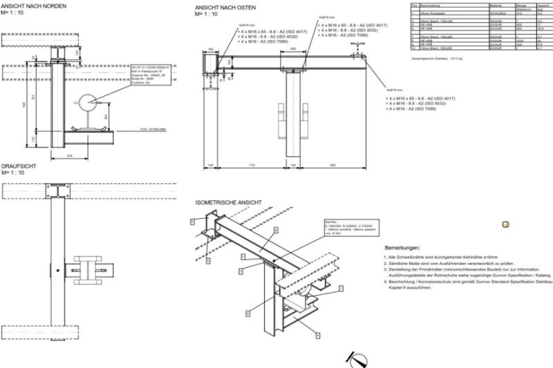
montagezeichnungen

Egal ob es sich um Halterungszeichnungen, Primär- oder Sekundärstahlbau, um Zeichnungen von Apparaten handelt, erstellen wir mit höchster Genauigkeit die Pläne für Schweißungen und Verschraubungen.

punktewolken

Mit Laserscanning möchten wir unsere Zukunft verbinden. Es gibt keine bessere Lösung für die Aufnahme von bestehenden Anlagen. Wir liefern Ihnen einen hochgenauen Ist-Zustand Ihrer Projektumgebung !

isometrien inkl. stücklisten

Auf Basis des erstellten Modells werden Isometrien generiert. Diese beinhalten alle Informationen, die zur Rohrleitusvorfertigung sowie für die Vorort-Montage notwendig sind. Natürlich inkl. Stücklisten !

design review dateien

Der Export von 3D Modellen zu Programmen wie z.B. Navisworks ermöglicht allen Beteiligten das Betrachten des aktuellen Planungsstandes. Projektrelevante Anlagenteile können angesehen und Kollisionen ausgeschlossen werden.

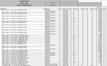
MTO

Die genaue Materialmengenauflistung ist ein sehr wichtiger Teil des Projektes. In jeder Planungsphase können aktuelle "Material Take Offs" erstellt werden, egal ob es sich um Rohre, Fittings oder Armaturen handelt.

visualisierungen

Moderne Engineering Software, die bei uns benutzt wird, gibt uns die Möglichkeit unseren Kunden fotorealistische Bilder von dem geplanten Projekt zu erstellen. Farben, Strukturen und Lichefekte - wir machen das Bild für Sie !